


application case
一、项目简介
立面:建筑术语 ,指建筑物各个方向的设计要素,组成,协调。
某华侨祖屋因年久失修,墙体出现开裂,屋内也有不同程度的损坏,需要翻修,但同时要保持原来建筑的基本风貌。
传统的测量方法可以实现这个工程的测量,但是过程相对来说比较复杂,工作效率慢,测量的数据也有一定偏差。思拓力X300三维激光扫描仪应用于这个祖屋改造工程,其庞大的数据支持、精准的配比拼接,直观的二维影像显示,可以很好地解决这些问题。
二、项目实施

点云二维影像图

三维点云图

横剖面图

纵剖面图

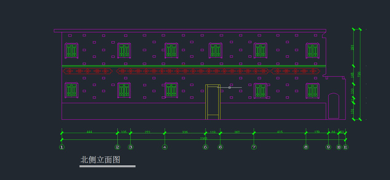
背立面图

背立面大样图
借助X300三维激光扫描仪获取的点云数据,导入到CAD软件中,可以很直观的在软件中看出建筑立面的相关材质和边界、门窗位置的相关性、墙面的雕刻和纹理等要素。

一层平面大样图
最后快速的计算出墙体的厚度,房屋的构造。


关注思拓力微信



全国服务热线:
4006780303

地址:
广州市黄埔区萝岗科学城彩频路7号C栋602-1